Mesta Electronics - A New Chapter
Since its inception in 1977, Mesta has been providing superior power quality and power conversion equipment to its valued customers. Embarking on a journey that spanned two generations of family ownership, Mesta’s commitment to excellence remained unwavering. In the pursuit of sustained growth and the delivery of optimal solutions, Mesta recognized the need to seek external partnership.
In 2019, a pivotal chapter unfolded as Mesta entered a partnership with Hammond Power Solutions (HPS), brand labeling its Active Harmonic Filters to complement HPS’ Power Quality product line. HPS is an industry leader in both dry-type transformers and power quality solutions. This partnership was further enhanced with the acquisition of Mesta by HPS, in 2021.
The acquisition led to substantial improvements at Mesta over the last two years, starting with the increase in production capabilities. HPS invested in advanced testing, manufacturing, and safety equipment to the Mesta factory situated just outside out of Pittsburgh, PA. Simultaneously, the manufacturing workforce tripled to satisfy the growing demand for Induction Heating Power Supplies. Another key focus over the past year has been expanding Mesta’s product development capabilities, exemplified by the addition of software and hardware engineers with decades of experience in the power electronics industry.
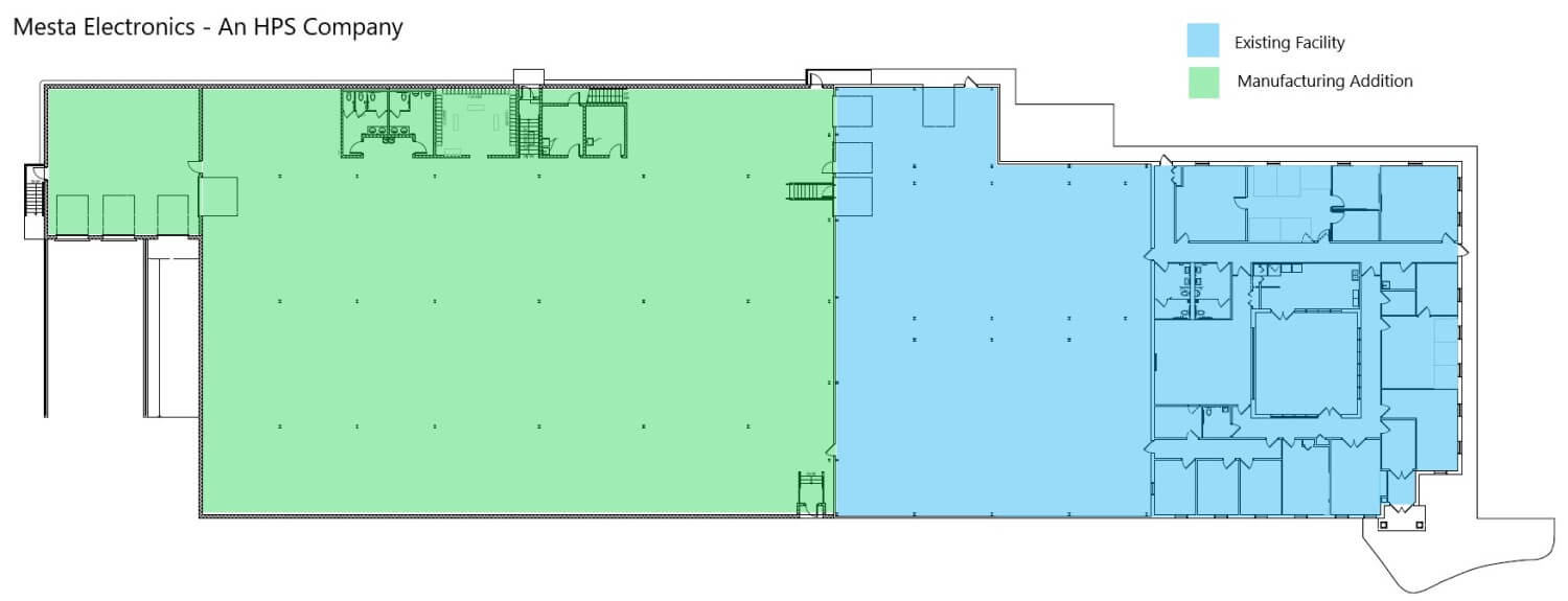
Moving into 2024, Mesta will continue to add to their production and engineering capabilities, including a 20,000 sq ft factory addition [as previously announced], coupled with comprehensive facility renovations, set to commence in the upcoming weeks, with completion anticipated by the 3rd quarter of 2024. Also, Mesta will continue expanding its engineering and other support staff throughout 2024 to ensure they are meeting their customers' needs. During this process of growth and investment, Mesta will strive to become a key piece for HPS’ new Power Quality & Conversion Business Unit.

Mesta Facility Expansion Plan
With these changes, Mesta is positioned to continue as an industry leader in Induction Heating and other power quality sectors and provide innovative products and solutions for its customers.
